CONJUNT D’EDIFICI DE VESTIDORS I GRADES AMB DOS CAMPS DE FUTBOL
LARDERO, LA RIOJA
2011
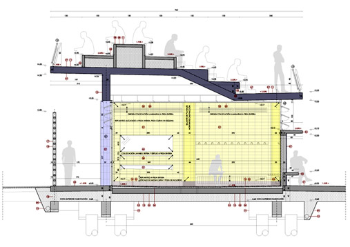
Les grades, coberta de l’edifici de vestidors, es formalitzen com un espai públic on la gent pot mirar els partits, però també reposar o gaudir de l’entorn.
L’edifici de vestidors, situat longitudinalment entre els dos camps de futbol, fragmenta el seu programa per separar usos -vestidors, serveis al públic, manteniment- conformant un edifici permeable que connecta els dos camps.
Formigó i ceràmica composen els tancaments i l’acabat interior dels diferents espais.




