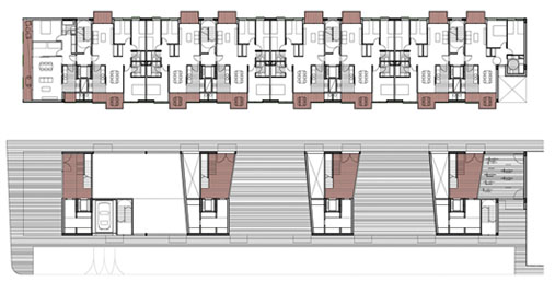
46 HABITATGES DE PROTECCIÓ OFICIAL
BURRIANA, CASTELLÓ
CONCURS
2009
Concurs per a la construcció d’un edifici d’habitatges que acabi de tancar una illa en forma de “U”, amb uns paràmetres volumètrics molt definits.
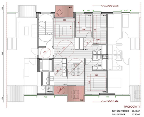
El projecte juga amb la transversalitat; proposa habitatges amb un espai principal continu passant, i una planta baixa alliberada al màxim de programa.
Transversal: 1. adj Que va en una direcció, que travessa una direcció donada (sovint oposat a longitudinal). Dues posts paral·leles unides per llistons transversals. Secció transversal. 2. adj i f GEOM Dit de la recta que travessa o talla un sistema de rectes, corbes, etc.



