REFORMA D’UN HABITATGE EN UN ÀTIC
BARRI DEL RAVAL, BARCELONA
2006 - 2007
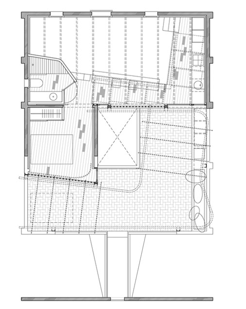
Reconstrucció gairebé total d’un habitatge sobre una coberta en un edifici interior d’illa al Raval.
Projecte per a una parella amb unes necessitats concretes però complexes en un espai reduït.
L’habitatge explota al màxim el caràcter singular de la seva situació i s’obre amb una nova envolvent diàfana a la terrassa i a l’accés.
L’interior respon a les necessitats funcionals diluint i superposant els usos de treball, descans, oci i emmagatzematge.




