HABITATGE UNIFAMILIAR
RASILLO DE CAMEROS, LA RIOJA
2008
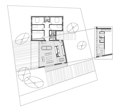
Projecte per a la gran ampliació d’un petit habitatge en un terreny de fort pendent.
La nova volumetria parteix de la geometria de coberta original, genera un gran espai comú i disposa l’estudi-dormitori principal en una posició privilegiada. La proposta completa es relaciona amb el terreny mitjançant l’ocupació diversa de terrasses i porxos.


