32 VIVIENDAS DE PROTECCIÓN OFICIAL
CARABANCHEL, MADRID
CONCURSO
2007
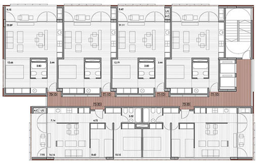
Concurso para un edificio de viviendas, en una posición de cabeza de manzana en un barrio en crecimiento.
La planta baja se libera, se accede a través de un espacio público de doble altura, sólo el núcleo de comunicaciones llega al suelo.
Las viviendas, de 1 y 2 dormitorios, de dimensiones ajustadas, distribuidas como espacio continuo, se amplían a un ámbito exterior propio.


