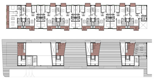
46 VIVIENDAS DE PROTECCIÓN OFICIAL
BURRIANA, CASTELLÓN
CONCURSO
2009
Concurso para la construcción de un edificio de viviendas que acabe de cerrar una manzana en forma de “U”, con unos parámetros volumétricos muy definidos.
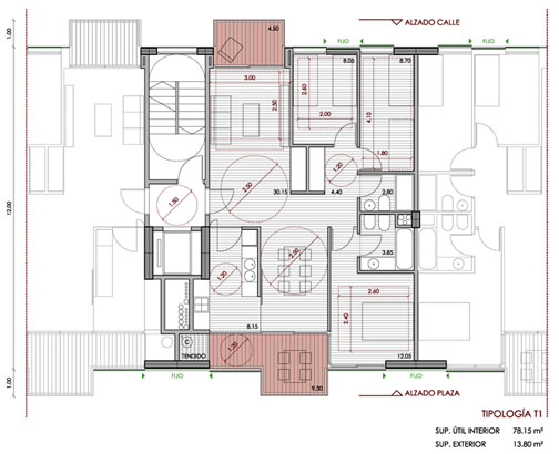
El proyecto apuesta por la transversalidad; propone viviendas con un espacio principal continuo pasante, y una planta baja liberada al máximo de programa.
Transversal: 1. adj. Que se halla o se extiende atravesado de un lado a otro. 2. adj. Que se aparta o desvía de la dirección principal o recta. 3. adj. Que se cruza en dirección perpendicular con aquello de que se trata.



