REFORMA DE UNA VIVIENDA EN UN ÁTICO DEL RAVAL
BARRIO DEL RAVAL, BARCELONA
2006 - 2007
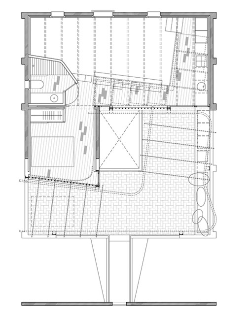
Reconstrucción casi total de una vivienda sobre una cubierta en un edificio interior de manzana en el Raval.
Proyecto para una pareja con unas necesidades concretas pero complejas en un espacio reducido.
La vivienda explota al máximo el carácter singular de su situación y se abre con una nueva envolvente diáfana a la terraza y al acceso.
El interior responde a las necesidades funcionales diluyendo y superponiendo los usos de trabajo, descanso, ocio y almacenamiento.




