38 VIVIENDAS DE PROTECCIÓN OFICIAL
SANT JOAN D'ALACANT, ALICANTE
CONCURSO, PROYECTO SELECCIONADO
2009
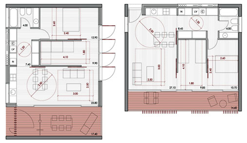
Propuesta para un conjunto de viviendas protegidas de alquiler y reserva de solar para un futuro equipamiento, en un área urbanísticamente dispersa.
El proyecto se implanta dando una mayor calidad y diversidad al espacio urbano, cediendo espacio público a cota de calle y reduciendo su impacto visual.
Las tipologías edificatorias aportan variedad y riqueza en su uso, explotando su relación con un singular espacio exterior privado.
Zaguán: 1. m. Espacio cubierto situado dentro de una casa, que sirve de entrada a ella y está inmediato a la puerta de la calle.




