VIVIENDA UNIFAMILIAR
RASILLO DE CAMEROS, LA RIOJA
2008
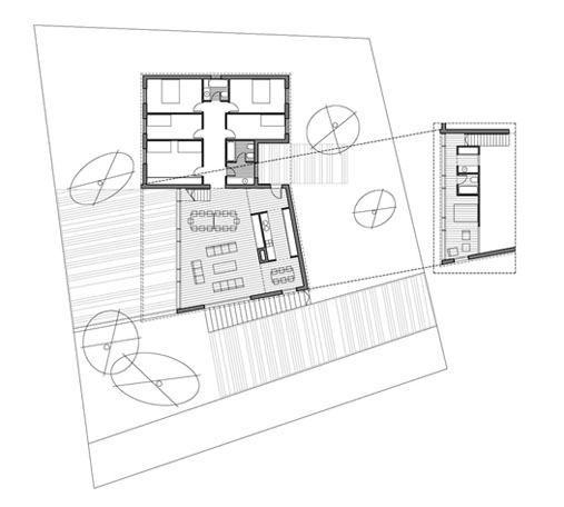
Proyecto para la gran ampliación de una pequeña vivienda en un terreno de fuerte pendiente.
La nueva volumetría parte de la geometría de cubierta original, genera un gran espacio común y dispone el estudio-dormitorio principal en una posición privilegiada. La propuesta completa se relaciona con el terreno mediante la ocupación diversa de terrazas y porches.


