CONJUNTO DE EDIFICIO DE VESTUARIOS Y GRADAS CON DOS CAMPOS DE FUTBOL
LARDERO, LA RIOJA
2011
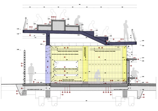
Las gradas, cubierta del edificio de vestuarios, se formalizan como un espacio público donde la gente puede mirar los partidos, pero también reposar o disfrutar del entorno.
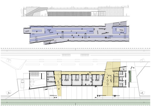
El edificio de vestuarios, situado longitudinalmente entre los dos campos de futbol, fragmenta su programa para separar usos - vestuarios, servicios al público, mantenimiento- conformando un edificio permeable que conecta los dos campos.
Hormigón y cerámica componen la envolvente y el acabado interior de los diferentes espacios.




